85平精装改温馨自然质感三室两卫,这个家美观不留卫生死角
2025-10-04 本站作者 【 字体:大 中 小 】
#深度好文计划#
项目面积85平,造价22万,项目坐标:广东·深圳,设计师说在前面:本案例是精装房,房子主要二人居住,为了节省一些装修时间和成本,在硬装上主要改动区域为客厅、餐厅、厨房和三个房间,两个卫生间未做改动


原始结构图

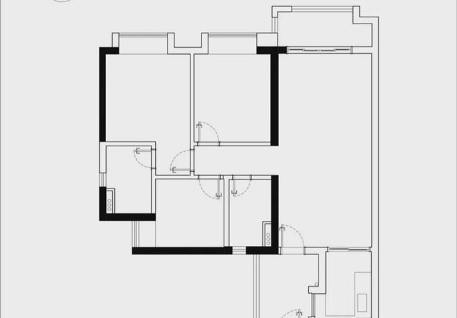
平面布置图

玄关区域原本是护栏,封窗后在窗边做收纳柜,由高矮柜组合,满足日常收纳功能的同时也能兼顾采光的需求,底部还预留了扫地机器人充电位

地面铺贴自然质感的小格子纹理砖,和客餐厅区域形成界限区分,右手边保留了原先厨房的采光窗,下厨时能第一时间看到家人回家,买菜回来也能直接把菜放进厨房里

客厅墙顶面刷同色奶油色乳胶漆,在天花边角做弧形装饰,弱化墙面和天花的边界感,让空间更整体

选择一款棉花糖羊羔绒沙发,肤感和坐感都很好,与空间气质也很搭,一旁的大株绿植盆栽带来自然生机

原阳台封窗后,将阳台并入客厅,在边角位做定制柜,预留出洗烘机的位置

现场木作电视背景墙+定制悬浮柜,美观不留卫生死角

悬浮柜特写,转角做弧形处理避免磕碰

餐厅选择洞石圆形餐桌,让餐厅区域动线更加灵活自由,造型各异的餐椅随性不刻板

洞石带来的自然质感和餐边的木质质感相呼应,利用墙面增设双层隔板,可随心情放上不同的装饰品

餐厅看向客厅视角

拆除原有的厨房门,选择了黑色方格复古移门

原厨房操作台面较小,调整了厨房和玄关间隔的墙体(平面图可见),让厨房拥有更多操作空间

客餐厅看向通往私领域的走廊视角

次卧空间比较小,1.5米的床靠窗摆放,刚好留出过道空间

和衣柜定制了连体的工作台,美观又好用

主卧延续整屋格调,选择没有靠背的床体,节省空间尺寸,让床尾刚好放下了工作台

和定制柜延伸出来的墙板背景,同时用定制墙板做了窗框。带骨骼线墙板,个性有设计感,大理石壁灯彰显品质
猜你喜欢
学校民族团结教育举措(经验总结汇报材料)6篇
211
浅述分层次教学应用于大学本科高等数学教学
209
[经济管理学院]经济管理学院专业介绍
225
2017儿童母语教育论坛暨亲近母语教育研讨会邀请函
97
问题导向的跨学科通识教育
97
汇丰商学院Karol Mazur发文量化分析非正式保险和灌溉之间的关系以及灌溉公共政策对福利的影响
155
教育众筹:携手共建明日教育
177
精锐教育末路:50万元客单价被高管吹捧,玩命拼“售课”而非“授课”
121
中外教育理念的核心差异
215
设第二总部,教育公司纷纷抢滩武汉
177
装修公司为抢搬运生意20人追打十几名散工
新房坚持不做吊顶,全屋家具进场效果还不错,先放着通风一段时间
今年装修的请注意!江苏多地旧房装修补贴申领指南来了
5月嘉兴吊顶展,法帅携“美菱”共同探讨吊顶新未来
腻子粉怎么批发便宜,长沙腻子粉批发【最新资讯】
“三增两降”:无锡再颁十条楼市新政
2025深圳装修报价指南:价格区间与省钱攻略
单面布基胶带的用途是什么
艺术漆涂刷的详细步骤
装修中集成墙板的效果怎样?



