90㎡美式紧促小三居,装完堪比120㎡的宽敞与实用,太厉害
2025-08-28 本站作者 【 字体:大 中 小 】
最近,90㎡的小三居室越来越受到人们的关注了, 与传统的小户型相比,小三居室不仅能够提供更多的房间供多口之家居住,还能保证每个房间的使用空间足够,而且,90㎡的小三居室对于一些追求宽敞舒适生活的人来说,更是一个绝佳的选择。

不仅如此,90㎡的小三居室的空间布局和设计也非常合理, 通过合理地利用每个角落的空间,使得整个室内看起来更加宽敞明亮,再加上家具的选择和搭配也非常讲究,让整个空间更加舒适实用,甚至比120㎡的房子还要宽敞实用,下面就来看看这样一套90㎡的小三居室吧!

第一章:90㎡美式小三居室,打造住120㎡的舒适感
重点一:合理布局,空间足够大并不会显得局促
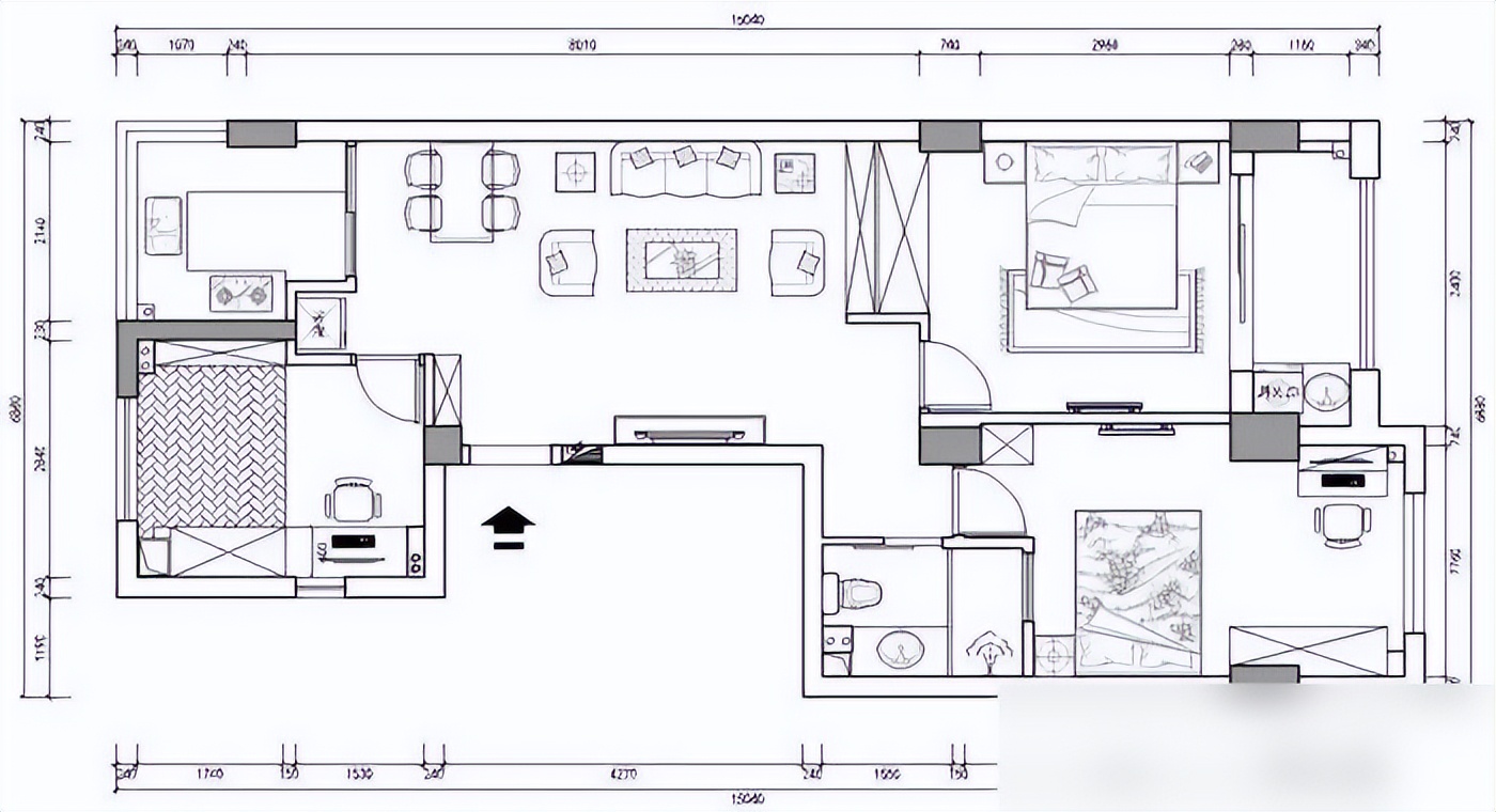
这套90㎡的小三居室整体布局合理,利用率很高, 客厅、餐厅和厨房等公共空间被合理划分,确保每个区域都有足够的活动空间,这样一来,即使在有限的空间内,家庭成员也能够享受宽敞舒适的生活环境。
而且每个房间的空间利用率也是很高的,主卧、次卧的面积都很大,房间里放置一些家具,空间也不会显得拥挤, 这样的空间利用方式能够避免堆积杂物,让整个房子看起来更整洁大方,也能让家居环境变得更舒适。

重点二:功能区嵌入式柜体的设计,提升空间实用性
另外要保证空间实用,最好的方式就是打造嵌入式的柜体, 这样的设计能够节省空间,增加房屋的使用面积,同时也能提升空间的美观度。
比如这套房子的客厅,主人不只是单纯依靠墙面刷漆,采用 浅色图案的壁纸铺贴,配合墙面嵌入式的柜子设计,房间的美观度和实用性都得到了提升。

餐厅同样也打造了嵌入式的餐边柜,柜体也和墙面融为一体,整体的收纳空间很充足。 这样的设计可以避免柜体和墙面留有缝隙,无论是清扫灰尘还是收纳杂物都能变得更简单。

重点三:客厅和餐厅空间的打通,促进室内的流通感
一般来说, 小户型的客厅和餐厅之间会有隔断,这样的设计虽然能够保护隐私,但是对于一个90㎡的房子来说, 这样的布局会显得空间更为压抑一些,所以这套房子的设计师在户型设计上就大胆地去打破了这种传统的设计思路,客厅和餐厅合理地将空间进行了打通,这样的设计会让整个空间的流通感变得更强。

第二章:看90㎡的美式小三居,空间实用还舒适
主卧及次卧的嵌入式设计,空间收纳更强
在卧室的设计上,我们也采用了嵌入式的床铺和柜子,这样的设计可以充分地利用墙面空间, 比如卧室靠墙的地方做了榻榻米的设计,地台和墙面一体化,房间的整体风格和谐统一,自然也能够避免堆积杂物,让房间看起来更整洁。

厨房打造U型布局,空间利用率变得极高
厨房是一个重要的家庭区域,对于90㎡的小三居室来说, 厨房的空间布局和设计也非常重要。厨房通常会选择L型或者U型的布局, 这两种布局方式能够最大限度地利用厨房空间,使得厨房的操作区域更加宽敞实用。
那么在这套房子的厨房设计上,选择的就是U型橱柜布局,配合吊顶的吊柜,整个厨房的空间收纳功能是比较强的, 即使是家里经常烹饪的家庭,也能保证厨房的整洁。

卫生间干湿分离,拥有玻璃淋浴房更舒适
卫生间是一个重要的功能区域,在卫生间的设计上要注意干湿分离,这样可以避免水汽在室内滞留过久,让整个空间保持干燥。
这套90㎡的小三居室卫生间空间并不小, 通过合理的空间布局,设计了干湿分离的玻璃淋浴房和马桶区域,这样一来,不仅提高了卫生间的使用舒适度,还能保证整个卫生间的空间整洁。

第三章:解锁90㎡小三居的美式风格,打造舒适住家
01.空间的软装上,充分体现美式风的格调,家居环境更舒适
美式家居风格以其简约、自然、实用的特点而受到很多人的喜爱。它强调简洁大方的设计,不拘泥于繁琐的装饰, 更注重空间的舒适度和实用性。通过合理的空间规划和布局,高质量的家具和装饰品的搭配,美式家居风格能够创造出一种温馨、舒适的居住氛围。

要深入的体验美式风的氛围,我们可以在空间中摆放美式地毯、艺术挂画、装饰沙发垫、布艺窗帘等饰品, 这些配饰不仅可以增添空间的美观度,还可以提升空间的实用性和舒适度。
比如在这套美式家居的装饰中, 通过合理的色彩搭配和风格呼应,打造出一种和谐统一的视觉效果,这样的设计方式能够很好地展现美式家居的特点和魅力,让整个空间更加舒适愉悦。

02.合理的色彩搭配,活跃空间的氛围
色彩搭配在美式家居中占据着重要的位置,它能够影响整个空间的氛围和情感,通过选择适合的色彩搭配,可以有效地活跃空间的氛围,使整个家居环境更加舒适、愉悦。
对于美式家居来说,通常会选择一些比较温暖和自然的色彩, 比如米色、棕色、蓝色等,这些色彩能够营造出一种温馨、舒适的氛围,同时也能够让人感到放松和愉悦。

03.室外空间和室内空间的对比,打造统一的家居风格
室内空间是家居生活的主要场所,而室外空间则是家居环境的延续和外在表现,合理地将室外空间的设计融入到室内装饰中,可以更好地促进室内外空间的和谐统一。

比如在这套美式风格家居中,室外的阳台设计和室内的设计风格非常统一,在家具选购,装饰品摆放上,也保持一致性,这样的设计能够让整个室内外空间融为一体, 也能够让人感到更加舒适、自然。

90㎡的小三居室虽然面积不大,但是通过合理的空间布局和设计,它能够提供足够的空间舒适度和实用性。在这个小小的空间里,家庭成员们可以充分发挥自己的创造力和想象力,创造出一个充满温馨和舒适感的家居环境。
猜你喜欢
2023年山东省临沂市教育局直属学校教师招聘公告
215
我的教育工作总结
183
西安财经大学校长赵敏娟一行来校调研交流
203
2022山东教师招聘教育学:西方现代学制
228
学校前身是原国家煤炭工业部1984年投资兴建的 北京煤炭管理
225
【阳光•通告】注意!宁夏教育考试院最新通告!
146
精锐教育末路:50万元客单价被高管吹捧,玩命拼“售课”而非“授课”
121
黑龙江农垦职业学院(江北校区)•师范教育分院2022年招生推介
161
我们都该了解的——“生命教育”--南京建康技工学校
232
要努力探索高质量教学的方法与路径
179
装修公司为抢搬运生意20人追打十几名散工
新房坚持不做吊顶,全屋家具进场效果还不错,先放着通风一段时间
今年装修的请注意!江苏多地旧房装修补贴申领指南来了
5月嘉兴吊顶展,法帅携“美菱”共同探讨吊顶新未来
腻子粉怎么批发便宜,长沙腻子粉批发【最新资讯】
“三增两降”:无锡再颁十条楼市新政
2025深圳装修报价指南:价格区间与省钱攻略
单面布基胶带的用途是什么
艺术漆涂刷的详细步骤
装修中集成墙板的效果怎样?



