不同面积段:“大三房”户型设计,改善迭代升级!
2025-04-21 本站作者 【 字体:大 中 小 】
120-130㎡三房户型
120-130㎡面积段的大三房户型市面上数量是最多的,面宽很大,基本能做到四开间,还能保证三房户型基本的舒适度,同时实现双联阳台、带储物玄关、或通过多阳台、飘窗等方式实现宽敞的空间与视线。
① 动静分区
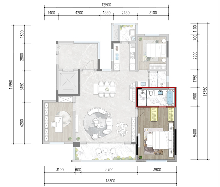
比如重庆首创·禧瑞山河建筑面积约129㎡3房2厅2卫户型,非常明显的动静分区,在动区的活动保持的基础,又能让静区能够保持一定的私密性,减少彼此之间的干扰。

重庆首创·禧瑞山河建筑面积约129㎡户型
整个动区做了一体化设计,进入室内一目了然,南北双阳台十分通透,约6.1米大宽厅开拓出一间开放式书房。

摄影:三棱镜
杭州中海·河映云集建筑面积约128㎡3房2厅2卫户型,也是明显的动静分区,餐、厨、百变空间、阳台、客厅联动的家庭社交空间,近1/2的户内公共面积,强化生活场景的社交活动力。

杭州中海·河映云集建筑面积约128㎡户型

约128㎡样板间实景图
② 尽可能增加客厅面宽,开拓出多功能区
约5.7米横厅
天津中海·左岸源境建筑面积约125㎡3房2厅2卫洋房户型,客厅面宽约5.7米,LDKB一体化的超大公共活动空间,空间尺度很舒适。
充分满足不同家庭对空间的需求,可随心拓展不同功能区,设计令空间利用率大大提升,减少了纯过道空间。

天津中海·左岸源境建筑面积约125㎡户型
约6米横厅
重庆香港置地启元建筑面积约128㎡3房2厅2卫设计,约6米横厅空间可拓展多功能区,根据家庭需求任意规划,开放式阅读区、儿童游乐区、SOHO角、影音游戏空间、阳光花房…...

重庆香港置地启元建筑面积约128㎡户型

样板间实景图
约6.4米横厅
昆明中国中铁·诺德山海春风建筑面积约125㎡3房2厅2卫户型,约6.4米横厅不仅可以做各种多功能区,还能单独作为一个房间来使用。

昆明中国中铁·诺德山海春风建筑面积约125㎡户型
③ 双联阳台、南北双阳台
郑州华侨城建筑面积约120㎡3房2厅2卫户型,开敞的双联阳台设计,主流开发商都选择了南向做双阳台,不管是对阳台的观感,还是南向次卧的采光都有一定的提升。

郑州华侨城建筑面积约120㎡户型

样板间实景图
而南北双阳台形式基本就一种:客厅+餐厅/厨房位置设阳台,比如下面这个户型:郑州金地名悦建筑面积约126㎡户型空间通透,让客餐厅共享南北向阳光,在有限的面积里,尽可能让视线拓展开,居家更舒适。

郑州金地名悦建筑面积约126㎡户型
下面昆明龙湖·山海原著建筑面积约122㎡户型做了三联阳台设计,其采光和通风效果更佳。

昆明龙湖·山海原著建筑面积约122㎡户型


样板间实景图
④ 合理设计飘窗
比如武汉金科·桃湖美镇建筑面积约120㎡三房两厅两卫户型:

武汉金科·桃湖美镇建筑面积约120㎡户型
南向三开间通透采光,双联阳台、南北双阳台,采光通风很好,不仅卧室均带飘窗或阳台,卫生间和厨房也带飘窗,格局方正,空间宽敞。


样板间实景图
天津中海·左岸源境建筑面积约125㎡3房2厅2卫洋房户型,设计师非常合理地设计飘窗。

一般飘窗台宽度在40公分,而左岸源境却能做到60公分,再配合45公分的高度,更适合人坐卧。
配上软垫,相当于给南向卧室和客厅(部分户型)额外配置了一部沙发。既能拓展室内空间感,又有很强的实用性。
⑤ 归家动线做出特色
郑州保利上城建筑面积约127㎡户型,双重归家动线,打造的实用主义的洄游户型。

郑州保利上城建筑面积约127㎡户型
130-150㎡三房户型
这个面积段的户型增加约20㎡,除去以上我们分析120-130㎡户型的特点之外(以上特点在此面积段不过多解析),LDKB大横厅成为了此类户型的标配,同时会做豪华的主卧套,次卧的储物空间更加充足,很多户型还会有独立的储物间。
① LDKB横厅设计,丰富室内活动
郑州雅宝龙湖·天钜建筑面积约142㎡3室2厅2卫户型,LDKB一体化设计,MAX多元客厅,以好产品满足客户更丰富的生活场景想象。

郑州雅宝龙湖·天钜建筑面积约142㎡户型

样板间实景
成都黄龙溪谷建筑面积约144㎡3室2厅2卫户型,一体化的设计增加了北向家政间,所有的公共空间全部互通,美景就在眼底。

成都黄龙溪谷约144㎡户型

建面约144㎡样板间实拍图
② 豪华主卧套设计
重庆长嘉汇·朗峯建筑面积约132㎡3室2厅2卫户型,南向主卧和次主卧均配有开阔的直角景观飘窗,其主卧还配备步入式衣帽间、卫浴套间,业主居住格调和品质感大大增加。

重庆长嘉汇·朗峯约132㎡户型
成都花样年望花溪建筑面积约141㎡3室2厅2卫户型甚至还增加了浴缸。

成都花样年望花溪约141㎡户型
150㎡以上三房户型
户型再一次升级,增加至150㎡以上,可做边厅设计,在LDKG一体化的基础上可以实现中西双厨的配置;客厅的社交功能更加丰富;更加全能的收纳系统涵盖到从玄关、客厅、卧室等空间;还能能实现双套房设计。
① 边厅、中西厨、全能社交厅
成都花样年望花溪建筑面积约172㎡三室两厅三卫,将玄关客厅和餐厅连接起来,更关键的是,还把客厅的露台连接起来,从而形成了一个LDKB空间。

成都花样年望花溪约172㎡户型

样板间实景图

样板间实景图
天津旭辉铂悦公望建筑面积约170㎡这个户型做了中西双厨,空间感一下倍增,功能使用也更为丰富,这是一点非常明显的较之于传统豪宅户型设计的进步。

天津旭辉铂悦公望约170㎡户型
② 双套房设计
昆明中国中铁·诺德山海春风建筑面积约165㎡户型,区别于传统户型只有一间套房的设计,除主卧外,还可以拥有儿童套房或是老人套房,均朝南大尺度面宽设计,让家人有更大、更独立的私密空间。

昆明中国中铁·诺德山海春风约165㎡户型
③ 一层一户
成都北湖揽樾建筑面积约154㎡3房2厅2卫户型,实现了200平以内的独梯独户,实现无遮挡采光。

成都北湖揽樾约154㎡户型
猜你喜欢
推动研学旅行与优秀传统文化融合
212
数字化背景下创新大学生生命教育模式
215
中学生理想信念教育心得
124
审计处党支部与采购管理办公室党支部 赴马栏革命纪念馆开展主题党日活动
102
教育培训机构实习日记
103
我们都该了解的——“生命教育”--南京建康技工学校
232
谈合唱教学的美育功能
169
史记是编年体还是纪传体 史记是不是编年体还是纪传体
322
新时代高校教师队伍建设的历史性成就、宝贵经验与未来展望
189
新书 | 当代社会政策分析
95
装修公司为抢搬运生意20人追打十几名散工
新房坚持不做吊顶,全屋家具进场效果还不错,先放着通风一段时间
今年装修的请注意!江苏多地旧房装修补贴申领指南来了
5月嘉兴吊顶展,法帅携“美菱”共同探讨吊顶新未来
腻子粉怎么批发便宜,长沙腻子粉批发【最新资讯】
“三增两降”:无锡再颁十条楼市新政
2025深圳装修报价指南:价格区间与省钱攻略
单面布基胶带的用途是什么
艺术漆涂刷的详细步骤
装修中集成墙板的效果怎样?



