装修案例 | 惊艳朋友圈的160㎡复古南洋风之家,自带电影氛围感!
2025-04-29 本站作者 【 字体:大 中 小 】
什么装修风格能做到中西混搭还不翻车?小千告诉你——绝对是复古南洋风了!!
南洋,是清末民国时期对东南亚的一种简称。南洋风融合了英式、法式、中式的风格元素,还兼顾了热带风情,可以说是混搭界的天花板~

今天这套案例,就是咱们千思明星设计师出品的160㎡南洋风装修!

客厅大景实拍
全屋用英法特色的装饰面搭配中式的空间格局,在柚木色木纹砖、抹茶绿跳色护墙板、文艺做旧墙布以及随处可见的胡桃色家具+大叶绿植的点缀下,造就了独具异国情调的空间气质。

让屋主日常仿佛置身于文艺片的电影场景中,真的值得装修时髦精们好好参考参考~
QIANSI
房/屋/信/息
house decoration
坐标:长沙市 雨花区 才子嘉都
户型:四室两厅两卫
面积:160㎡
硬装设计师:徐嘉豪
软装设计师:曾 静

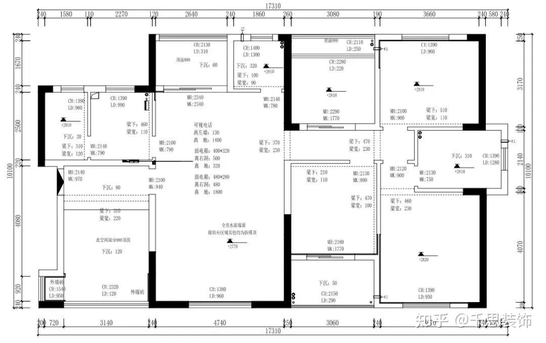
原始结构图

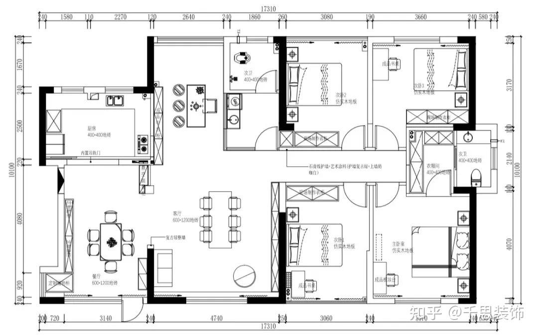
平面布局图
设计亮点:
1.餐厨地面用柚木色木纹砖+花砖拼接做区分;
2.定制整排书架代替传统电视墙,木色与黑色相衔复古文艺,书架顶部还装了隐藏式投影仪,颜值、功能两不误;
3.客卫与过道的空间半墙,都做了抹茶绿的护墙板+石膏线装饰;
4.主卧用薄荷绿的百叶门作为衣帽间入口,南洋风情扑面而来。
戳视频↓
先行感受这套复古南洋风装修案例

长沙160m²复古南洋风
戳下方卡片,get同款南洋复古风装修设计,千思装饰专业设计师,为你量身定制温馨舒适的家↓↓↓
xg.zhihu.com/plugin/c29f74b96141ff9c138ba5677d37b9d0?BIZ=ECOMMERCE

玄 关

本案户型换鞋区在外侧,进门即见厅,柚木色木纹砖与花砖拼接的地面鲜明地区分出餐厨区域,黑色的门套、柜体为整体增加质感。

餐 厅

旋身右转进入餐厅,壁炉、圆桌+定制的餐边柜有序分布,棕咖色的主调瞬间构建出怀旧韵味。

餐厅与客厅的这一面隔墙,用亚热带风情的做旧花卉墙布完全包裹,使两个空间更具美学上的绵延感。

利用餐边柜旁侧的公区定制嵌入式储物柜,统一的质感黑色柜身+黄铜把手,亦从细节上强化着餐厅的复古腔调。

厨 房

厨房用两联滑动吊轨门与餐厅隔断,通透的玻璃+流畅的地面,让餐厨的疏朗感扑面而来。

厨房内部,奶白色的橱柜+L型操作台点亮视觉,配合双窗的明亮光线,下厨更方便!



客 厅

客厅打破传统的功能布局,以电影感整墙书架+下午茶阳台为主导,分为两个大的氛围区间。

右手边这部分,木纹砖打底,整排定制书架+吊扇灯+南法风齐地纱帘,共同营造出风情摇曳的年代质感。

整排定制书架古朴大气,木色与黑色相衔,像极了电影里的家庭图书馆。

考虑到实用性,上方做了隐藏式投影仪,阅读、休闲两不误,空间利用率更足。

长达2.4米的亚克力悬浮餐桌能承载办公、大型聚餐等多种场景,比起茶几更加实用。

另一个角度的客厅C位一览,艳丽的刺绣桌旗、抹茶绿的分色墙壁,更从方方面面补充南洋风情。

与餐厨之间的隔断,是不对称的花卉墙布+朦胧梦幻的悬空玻璃墙,一株大型绿植衬在旁侧,弥散出丝丝慵懒~
戳下方卡片,get同款南洋复古风装修设计,千思装饰专业设计师,为你量身定制温馨舒适的家↓↓↓xg.zhihu.com/plugin/c29f74b96141ff9c138ba5677d37b9d0?BIZ=ECOMMERCE

阳 台

与阳台连接的这部分,主打观景、散心、发呆、阅读,弧形垭口下圈起一处下午茶花园,时髦的令人心惊!

中古柜和边几都是屋主自己淘来的,但深胡桃的色调遵循了整体的配色和谐标准。


波西米亚风的沙发罩、藤编元素的椅子以及中式花鸟挂画+书法,软装的选择融合了多国风情,将热烈的情绪极尽彰显。

过 道

客卫与过道的空间半墙,都做了抹茶绿的护墙板+石膏线装饰;搭配客卫干区的海棠纹长虹玻璃,视觉效果文艺古朴。

奶咖白的艺术涂料铺满上方墙壁,在老式复古吊灯的映衬下呈现出细腻的肌理感。

卫生间

客卫干区内部用朱砂红拼接白色壁砖,中央一张铁艺圆镜,浓烈的色彩过渡瞬间拉满异域风情~

岩板一体盆+内嵌洗、烘机的设计非常利落,用通透感很强的长虹玻璃门隔断湿区,也不会影响整体的采光。

儿童房

儿童房内的横梁+局部墙壁依旧做抹茶绿的跳色,不会出错又很能凸显特色。

次 卧

次卧采取明媚的黄蓝配色,同样临床设书桌,利用好优越采光。

儿童房和次卧的衣柜都是奶白色,和空间内的浅色系墙布搭配很显舒适。

主 卧

用做旧墙布和胡桃色家具打造的主卧,洋溢着典型的南洋复古气;

3000k的暖光床头灯+黄绿配套的床品,鲜明而有温度。


可以说无论是硬装还是软装,整个主卧都是按照老电影的风格在走的。

打开薄荷绿的百叶门,进去就是衣帽间。细密精致的“百叶帘”造型兼具层次美感与优雅气质,简直无可比拟!

L型衣柜与主卫的唱功玻璃门形成走廊式布局,收纳容量大,更换衣物也十分方便。
戳下方卡片,get同款复古南洋风装修设计,千思装饰专业设计师,为你量身定制温馨舒适的家↓↓↓xg.zhihu.com/plugin/c29f74b96141ff9c138ba5677d37b9d0?BIZ=ECOMMERCE

猜你喜欢
2021年硕士研究生考试沧州市教育考试院报考点(1309)网上确认公告
141
生命教育理论谁提出的
170
中央军校教导总队成立
100
美国TESOL证书课程的教学对象英语非母语国家的人群
233
中国教育学会与北京市朝阳区教育委员会举行共建教育高质量发展实验区启动大会
113
《神武》孩子知识教导答案:养育孩子更简单
223
教育行业怎么做营销
193
聊城大学东昌学院2018年招生简章
186
2017儿童母语教育论坛暨亲近母语教育研讨会邀请函
97
理财 | 人生的每个阶段都需要理财,什么时候开始都不晚!
173
装修公司为抢搬运生意20人追打十几名散工
新房坚持不做吊顶,全屋家具进场效果还不错,先放着通风一段时间
今年装修的请注意!江苏多地旧房装修补贴申领指南来了
5月嘉兴吊顶展,法帅携“美菱”共同探讨吊顶新未来
腻子粉怎么批发便宜,长沙腻子粉批发【最新资讯】
“三增两降”:无锡再颁十条楼市新政
2025深圳装修报价指南:价格区间与省钱攻略
单面布基胶带的用途是什么
艺术漆涂刷的详细步骤
装修中集成墙板的效果怎样?



