定制衣柜从设计到安装、验收最详图解+最全攻略
2025-04-27 本站作者 【 字体:大 中 小 】
如何在寸金寸土的住宅里高效利用空间已成为每个家庭关注的问题。成品衣柜的收纳空间小、浪费空间、功能单一等缺陷已无法满足人们的需求。那么定制衣柜时,具体都要考虑哪些因素?

定制衣柜相对于成品衣橱来说,它具有充分利用空间、按需选择内部配件和颜色的优点,符合个性化的潮流,但在定制衣柜时随之而来的问题也不少:比如价格没有统一的规范;材质参差不齐等问题,很多东西表面看来差别很小,但却是让人挑到眼花……
一、以次充好 留神“材料猫腻”
一些商家在介绍板材时,将三聚氰胺纸贴面人造板材当成实木贴面来忽悠消费者,而当你再仔细询问为何实木贴面价格如此低廉时,他们却含糊其辞说是商家活动……
如今即使是三聚氰胺饰面,也能做到和实木类似的质感,但价格却便宜不少,所以才会有不法商家以次充好的现象发生。

提醒:关键在于一摸二看
想要鉴别纸贴面与实木贴面还是要靠摸,实木贴面的板材表面摸上去有种质感,涩涩的,而纸贴面比较平滑,即使是高仿真的木纹贴面,表面摸上去也和实木贴面有所不同。或者看板材小样的横截面,两者的厚度不同,纸贴面较薄,一眼就能看出区别。

我们在选择定制衣柜时,很容易忽略衣柜的背板,而这时有些小商家就会在“后背板材”上做文章,采用比侧板较薄的板材(一般厚度标准为9mm),导致整个柜体的结构强度不够,柜体容易晃动,有的柜体背板甚至采用劣质的板材,为安全埋下了隐患,最终以达到降低成本从中获利的目的。
提醒:写清材质杜绝隐患
在定制衣柜咨询板材的同时,也该仔细询问背板是否采用与侧板同样品质的板材,这也是消费者最容易忽略的方面。或者在购买合同上写明背板的材质,从根本上杜绝不法商家的“忽悠”,这才能保证衣柜的质量。

二、计算不规范谨防“面积陷阱”
走访市场时询问如何计算板材面积时,得到了不同的答案。不过好在部分品牌定制衣柜比较统一,采用展开面积计算,就是将所有使用到的板材面积加起来,得到的总和就是最后结果。

当然还有另外一种计算方式,就是采用投影面积计算,有的商家接待员一再强调这么计算省钱,有的商家说展开面积计算的清楚,那么我们到底该如何选择?为什么有些按照投影面积计算的衣柜价格最后并不便宜呢?

展开面积——采用展开面积计算起来比较复杂,但它的有点在于——这样的按项计算比较清楚,猫腻较少,一般见于大的品牌商家。它的算法是包括柜体在内,加上每块隔板的面积,单独展开计算,因此价格算下来与投影面积算法想必,会相对较贵。
投影面积——投影面积时正视柜子后,它所投影在墙上的面积,换句话说就是柜子宽度 * 高度就是所谓的投影面积。而按照投影面积来算,相对而言会比较简单,但其中是釉猫腻的。一般来说商家给你配几块隔板,而其余的配件需要另行购买,这是商家会在五金件和挂杆上玩价格“手脚”,看似便宜的价格,却因为加这个那个,总价又上去了。

其实这两种算法各有优劣,按投影面积的算法比较简单但不够精确,反之,用展开面积的算法虽然复杂但比较精准。一般来说,如果你的柜内隔板和配件比较多,还是选择展开面积计算。
其实,无论按照投影面积还是展开面积来算,都要仔细审核图纸,特别在修改图纸之后,按照展开面积来算的业主更要留神。因为只要有修改,衣柜所有面积就要重新改动,而价格就会相应地产生变化,我们要留心商家有没有计算上出现失误等状况。

三、留心“五金配件”的偷梁换柱
衣柜可是反复使用多年的家具,所以每个细节都要进行质量把关,就连五金件的选用也变得十分关键。滑道是否顺畅、推拉是否自如,这已经成为挑选的要点。而面对一些不法商家,购买时在口头上明明承诺是海蒂诗、Blum等国际知名五金配件,但买回家移门使用不到几个月就出现质量问题,这才发现根本不是国际知名五金配件。

出现这种问题的原因就在于商家以次充好,因为这样一个小小配件在收货时很容易被业主忽略,这才造成不法商家的有机可乘。我们在验货时应仔细体验滑动效果,好的滑动门在滑动时没有声音,这表示底轮和轨道之间摩擦力很小,其磨损就少,使用寿命就更长。所以验货时我们对细节部分也应该留心观察和检验。
如果担心自己不会验货,也可要求商家在发票上写好五金件的品牌,以防日后货不对版,还有个说理的凭证。
四、选购时,其他需注意的地方
1、看品牌服务
服务的好坏越来越受到客户的重视,许多小厂的产品价格很便宜,但保修期很短或者根本就没有保障,一旦出了问题很难得到合理解决。一般来说,品牌衣柜的柜体整体保修三年,终身上门服务,五金铰链终身维修。
2、看是否为专业设计制造
专业化的设计和专业化的生产设备是保证产品专业化的重要环节,我们能从每块衣柜的板材上都能看到品牌的logo,以确保商品的质量。
3、看衣柜配件
好品牌的整体衣柜配件齐全,完全能符合人性化的使用。通常配件有以下这些:抽屉、格子架、裤架、推拉镜、轨道、铰链。其中抽屉、格子架、裤架、推拉镜都是属于额外加钱的部分。
4、看工艺是否细致
在检查制作的工艺时,在外观上要查看柜门、柜体的封边条等是否整齐、平顺。使用机器封边的柜体外观是否平整、手感顺滑,否则这样的产品会开胶、起泡及变形,留下很多隐患。

在选购整体衣柜时,不可避免会出现很多问题,总之,无论遇到什么加价形式,只要每一项都明码标价,那不规范的虚价空间就小了。
5、细节选择
具体落实到细节设计的时候,我们要更加注意空间使用起来的合理性,如格局设计、五金和配件等,这些都会直接影响我们日常的使用体验。
通过花色、柜体、层板搭配设计,根据实际需要及设计师的意见选择最适合自己的衣柜格局。

升级配件可以确保衣柜发挥最大效益化,使衣柜不仅仅是只有收纳衣服的功能,而是作为多功能柜子在家中发挥作用。
由于定制衣柜涉及到测量、设计、风格搭配、精细做工等步骤,对制作团队有很高的要求。因此选择较大的品牌不仅质量方面有所保障,后续的质保等服务也会较为完善。
6、使用人群
年轻夫妇的衣物比较多样化,所以一般将左右两边分别设置成男女方各自的储衣空间。柜体内的挂衣架通常分为长短两层分别储存大衣和上装,衬衫也可以放置于独立的小抽屉或搁板,不会因过多衣物挤压在一起而皱折难看。
内衣、领带和袜子可用专用的小格子,既有利于衣物保养,取物也更直观方便;毛衣可放在较深的抽屉里;裤子则用专用的挂架存放。


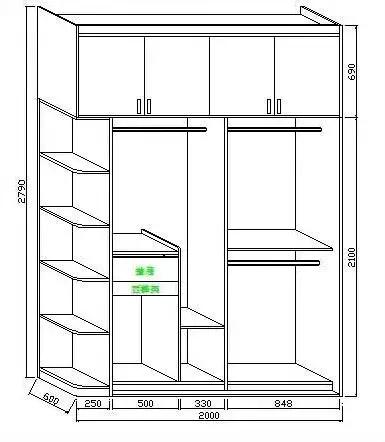
另如果房间够大,不如直接做一个衣帽间更合适,各种物品都可以存放。

图片为单面壁柜衣帽间,仅供参考
老年人的衣柜在设计时建议多做层板,因为老人衣物也不会很多,衣柜不需要特别大,但一定要注意存取方便,特别是常用的层板、抽屉不宜做的太低,以免老年人蹲下取物不方便。

小孩子现在叠放的衣物肯定多过挂放的衣物,但是孩子的成长是很快的,应将5到10年内的变化因素考虑进去,所以叠放区和挂放区比例适当的搭配是很重要的。
儿童衣柜一般都以多功能为主,玩具、书籍、衣物等儿童用品同事摆放,实现一柜多用。另外要考虑儿童的身高因素,儿童常用的物品要拿取方便,以免造成意外伤害;不要在儿童头部高度设计抽屉等可以拉出的配件,以免因没能及时收回发生碰撞意外。


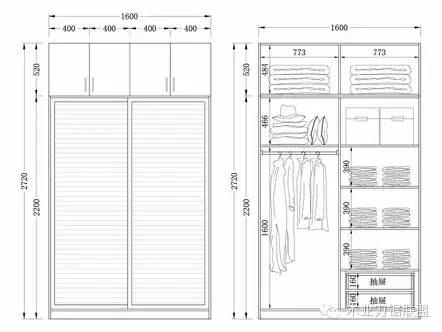
挂短衣或套装的柜体高度不低于800mm;
挂长大衣的柜体高度不低于1300mm;
抽屉的高度不低于150mm~200mm;
至于叠放衣物的柜体,以衣物折叠后的宽度来看,柜体设计时宽度在330mm~400mm之间、高度不低于350mm;
整个衣柜上端通常会设置成放置棉被等不常用物件,高度也要不低于400mm。



6、详解衣柜安装全过程
详解衣柜安装全过程定制衣柜安装实在看似一个复杂的过程,只有你了解具体的安装步骤和方法后,你就会觉得定制衣柜安装也没有想象中的那么难,定制衣柜需“量体裁衣”,才能产生事半功倍的效果。

一、准备阶段:
①料到场
比较正规的家具厂商,板材运送到现场时一般都有纸板包装。拆开包装后验收一下各块板材和五金件。
②固定螺丝
板材上一般都按设计图留好了钉眼,在现场的工人用专用工具把螺丝固定好。
③量裁侧板
由于衣柜是贴墙放置的,所以侧板上要在踢脚线的位置锯掉一块。踞好后摆放看看是否贴合。

二、安装阶段:
①安放底板
衣柜底板放置的地面事先要打扫干净,因为等安装后再去清理的话会非常麻烦。
②固定框架
按照板材上的凹槽安装好衣柜的侧板和背板,调整各块板之间的位置。
③安装顶板
现场最好准备一个攀高用的凳子,顶板要举高了放置上去的,然后用铆钉固定。

④安装搁板
把搁板放置到事先敲好螺丝的地方,然后固定。注意调整搁板与背板、侧板的固定位置。
⑤固定门轨
在衣柜的顶边和底边都安装好门轨,门轨选合金的材料比较好,又轻又牢固。
⑥安装衣杆
在预留的位置打好固定铆钉,安装好衣杆。注意两边要平衡。

三、收尾阶段:
①安装门扇
两扇移门要贴和导轨的位置安装,先固定好门扇再把底边的导轨固定好,这样避免以后发生门扇脱落的现象。
②调整改良
全部安装完之后,对衣柜做个“全面检查”,有偏差的话及时调整。

四、完成验收
最后对衣柜做一下验收:摇晃下柜体看看是否牢固,细节是否到位。

关于定制衣柜,这应该是最全面的知识了,赶紧收藏了吧!
猜你喜欢
跨界创艺 与美同行 ——市级课题《跨学科视域下小学美育学习过程的建构》阶段成果推广暨结题汇报活动在上师日新举行
116
审计处党支部与采购管理办公室党支部 赴马栏革命纪念馆开展主题党日活动
102
最新通知!可利用晚上及周末开展!深圳中小学在线教学或有变化
130
丽水学院教师教育学院:数智赋能“行知行”模式 为山区教育培养高素质教师队伍
233
幼儿园中班安全教案《认识火》含反思
106
珍爱生命系列小学生性教育读本又出新书 曾备受争议
201
陈钱林:10个简单实用的家教妙法
119
幼儿园美术教育活动实施原则美术教育活动实
186
北京市石景山区教育委员会
230
幼儿园大班语言教学计划
148
装修公司为抢搬运生意20人追打十几名散工
新房坚持不做吊顶,全屋家具进场效果还不错,先放着通风一段时间
今年装修的请注意!江苏多地旧房装修补贴申领指南来了
5月嘉兴吊顶展,法帅携“美菱”共同探讨吊顶新未来
腻子粉怎么批发便宜,长沙腻子粉批发【最新资讯】
“三增两降”:无锡再颁十条楼市新政
2025深圳装修报价指南:价格区间与省钱攻略
单面布基胶带的用途是什么
艺术漆涂刷的详细步骤
装修中集成墙板的效果怎样?



