温柔色系清新复古斜顶跃层大宅
2025-11-09 本站作者 【 字体:大 中 小 】


项目面积260平,造价200万,这是一套老房改造的项目,将老房重新定义,赋予新的生命,从原来的棕色系改为莫兰迪色系,更加轻快明亮,进门左手边做小件收纳区,右手边利用楼梯下方空间打造鞋柜

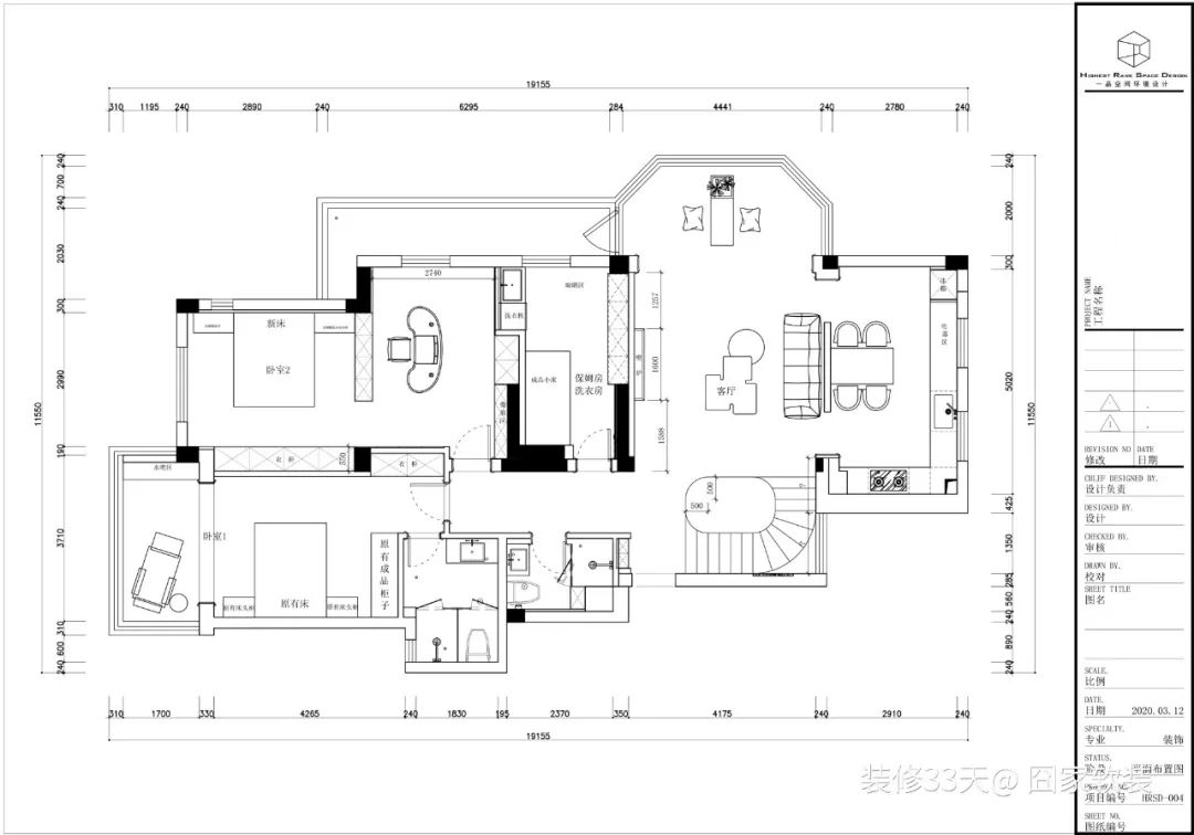
一层平面布置图

客厅以奶油色为主,墙顶面加入雕花石膏线条勾勒,将空间精致度提升一个档次

简约的家具布置出自然舒适的氛围,经久耐看,简单且温柔

客厅与餐厨之间通过弧形垭口过渡,奠定空间优雅格调

新建一堵矮墙作隔断,同时兼具小吧台功能,选用木质餐桌和藤编餐椅,自带中古气息

开放式厨房,浅色系的橱柜与墙砖结合,好看又亮堂

黄铜水龙头搭配陶瓷水槽,成为厨房最独特的装饰

进入次卧先来到书房

睡眠区,低饱和度空间加入深色家具,沉稳不失雅致,床尾是整排顶天立地大衣柜

主卧,把原来家里喜爱的家具保留了下来,天然的旧物感增加了岁月的痕迹,让家变得更温馨

靠窗打造休憩一角

构造优美的弧形楼梯是家中的一道别开生面的风景线

垂落的吊灯组增添层次和艺术感

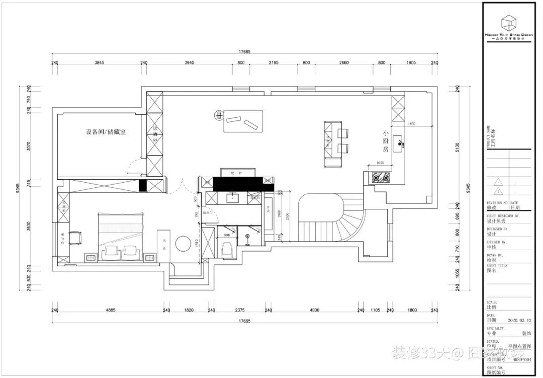
阁楼平面布置图

布置成品边柜和装饰画丰富过道

阁楼新增吧台休闲区,角落摆放复古小冰箱,既实用又能把它当作一件装饰品

往里走是小厨房,解决阁楼喝水泡茶的需求

利用过道打造起居室,壁炉两侧墙面内凹增设隔板,用于摆件展示与书籍收纳

一方小小的阅读空间

卧室,弧形门洞+双开门设计,仪式感满满

卧室做了充足的收纳区,床头背景护墙与收纳柜和谐统一,自带高级感

沿窗下方打造梳妆台,左侧是开放格,右侧是抽屉柜

摇臂灯可以根据需求调节照明位置,灵活实用
猜你喜欢
大班社会领域教案5篇实施方案
236
培训学校的招生计划方案.docx
223
幼儿园教研工作计划「」
215
留学必知-解读澳洲五大教育体系
125
天津大学管理学院
188
2024信阳高中辅导教育机构哪家好 什么机构值得选
131
天津教育杂志被哪些数据库收录?
230
【人物】诗意而激情的回眸——记华南师大基础教育培训与研究院王红院长
132
数字时代的新文科通识教育
227
中国关工委主任顾秀莲出席第九期全国青少年法治教育研修班开班式并作首场报告
228
装修公司为抢搬运生意20人追打十几名散工
新房坚持不做吊顶,全屋家具进场效果还不错,先放着通风一段时间
今年装修的请注意!江苏多地旧房装修补贴申领指南来了
5月嘉兴吊顶展,法帅携“美菱”共同探讨吊顶新未来
腻子粉怎么批发便宜,长沙腻子粉批发【最新资讯】
“三增两降”:无锡再颁十条楼市新政
2025深圳装修报价指南:价格区间与省钱攻略
单面布基胶带的用途是什么
艺术漆涂刷的详细步骤
装修中集成墙板的效果怎样?



