大红大绿80㎡,竟然搭出最高级的北欧风!
2025-09-20 本站作者 【 字体:大 中 小 】
面积:82㎡
装修费用:42w(含家电、软装、施工)
01
玄关

原有的房屋风格很普通,在屋主买下房子前,主要被中介简装后用于出租,基本上都是大面积的白墙或灰墙,没有玄关,一推门就是厨房和客厅,门是白色。

设计师在做了整体的布局后,房屋有了玄关和走廊。
玄关是一个狭长的空间,面积不大但收纳功能齐全。
开放式鞋柜搭配挂钩,上面可挂一些随手出门的衣物,下面放置两人的鞋子,满足小两口的日常收纳需求。
收纳柜对面墙壁安装了整面的镜面材质,从视觉上延伸空间,无形中扩大了玄关面积。

为了与改造后的次卧断桥铝转角面颜色一致,设计师选用了灰黑色作为玄关的主色调,原有的卧室门也被刷上了灰黑色的漆。
走廊选用了屋主钟爱的木地板,与墙面形成鲜明的对比。
02
厨房+餐厅

玄关和走廊的尽头是全开放式的厨房和餐厅。
但在原有的空间里,这里以一面半开放式的深灰色墙为分割线,划分卧室和客厅空间。
这是改造前


改造后,这里打掉了深灰色墙体,变成了全开放式空间。
因为这里有一面超大的窗户,设计师便充分利用自然光,让整个空间变得通透显大。
这是从客厅望向餐厅

靠谱到小两口常年忙于工作只在周末做饭,厨房和餐厅便折去了传统设计中“中岛”的收纳区域,做成了全开放式厨房。
Tips:
整个墙面用长条形的小瓷砖通铺,置入不锈钢直吸式的油烟机,在1.5m高处设置一个原木栏板作为置物架,地柜则兼具收纳、隐藏厨电的任务。
旁边的尺寸恰好留给半开的冰箱,不多不少。

对比想要挖空心思在厨房做收纳的空间,这样的设计显然不够,但设计师和屋主一致认为,与其买一堆不用的存起来,不如把用的用到极致。
定期断舍离,是他们追求的生活方式。
靠窗的台面一侧专门预留了两个插座,如果厨房的台面不够用,窗户的台面也可作为临时延伸的煮饭空间。

原木质地的餐桌充当了一部分“岛台”的功能,朋友来做客时可同时满足4-6人用餐,安静时,也可作为夫妻二人共同的工作台。
忙碌之外,夫妻二人也会在此惬意的喝酒聊天,红色的餐吧椅搭配绿植,厨房和餐厅也更具“氛围感”。

03
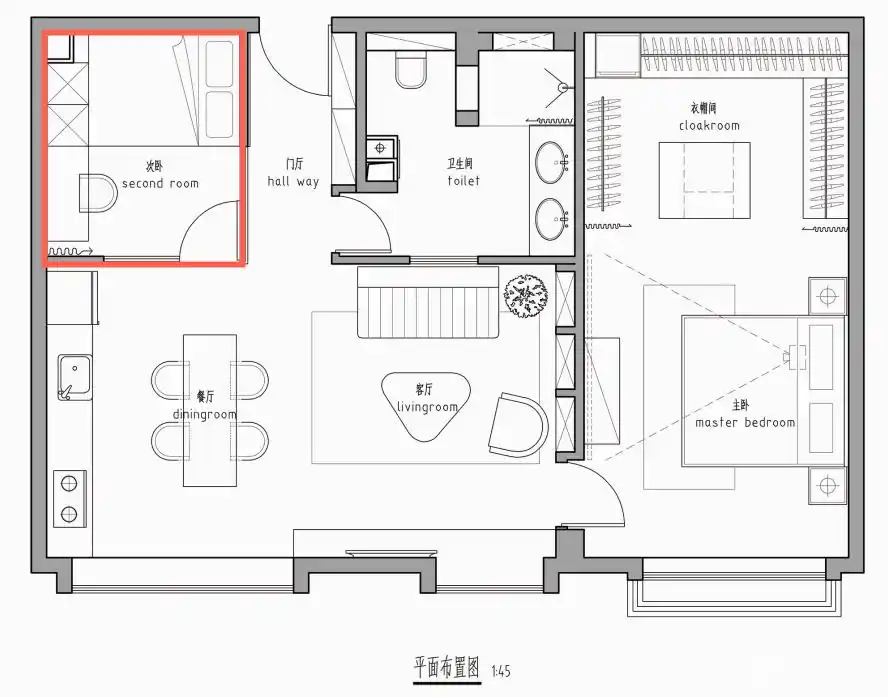
次卧

餐桌的右边就是次卧。
前面我提到了断桥铝,因为断桥铝是双面真空玻璃材质,采光好隔音也倍儿好,设计师就大胆地把它用在了整个次卧做墙,毫不违和。
其实断桥铝的隔音技术在国内已经很成熟了,安装简单,造价也比普通墙体更便宜。
这倒是个小户型显大的好方法,想做的可以参考,品牌推荐。

为了保证隐私性,次卧内部安置了“L”型的电动窗帘,有人入住时,可作为临时的客房。
次卧也做了单独的工作区和巨大的收纳区,可作为储物间补充餐厅的收纳区域、也可作为临时工作区。

04
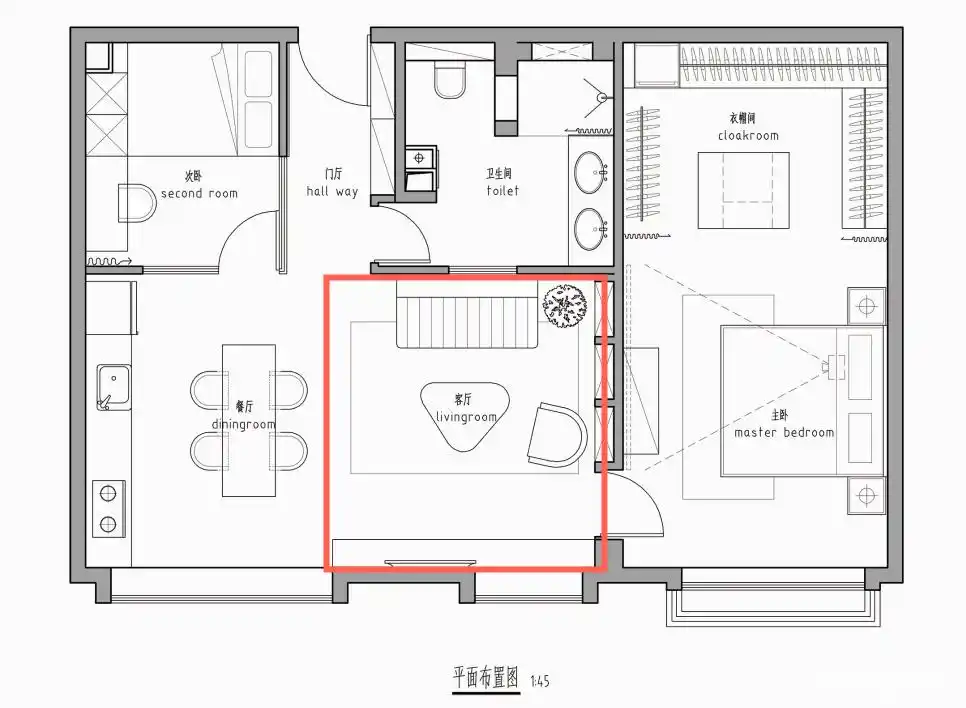
客厅

客厅位置是原来的卧室。


拆掉灰色的墙体后,打通了客厅、餐厨空间,加上两个落地窗的采光,空间整体上更加通透明亮。
从餐桌旁望向客厅空间

如果说厨房偏日式的小清新,客厅的风格却暧昧不清,但光看图确实有种想住进去的欲望。
整体的墙面以浅灰色为主,以绿色为点缀和中和,配上设计师款的暖色系沙发和几何形茶几,透明PVC单人椅,妥妥的高级感。
这就是我们之前说的家里要显质感,可以有几件设计师款家具撑腰,瞬间提升feel。

这款磨砂皮沙发来自于北欧表情,为了显大,特别选择了没有扶手款。
沙发侧面的书架直接用龙骨石膏板做成,和整体空间融为一体且造价很低;
刷上浅灰色的漆和绿色相称,搭配野口勇的经典茶几、苏格兰编花橡胶木地板和复古地毯为空间带来了浓浓的复古感。
沙发的靠墙处,为了给卫生间借光,设计师挖了一个圆形的洞安装了单向玻璃(就像警匪剧中的玻璃镜面一样);
在客厅一侧,与整个空间相融,成为一道特别的小景,但也不会暴露隐私。

电视背景墙被选在了厨房和客厅中间连接的墙体,因为客厅和餐厅中间还隔着过道,电视无法正对客厅中心区,这里用个设计小细节来解决。
一抹意外的纯绿色块将电视的重心转移,同时与龙骨架的书柜处形成点缀。这种视觉偏差游戏很妙,点亮了整个空间。
电视背景墙和吊顶都用石膏线做装饰,简约好看,也保证了空间风格在多色彩中用细节来统一。

电视墙下面做了内沿60cm的大理石台面,可作为简易收纳区和绿植放养区。

05
主卧+衣帽间

穿过客厅的门,就进入了主卧空间,下面是改造前的场景。

改造后,设计师拆掉了原有的实体墙,用静音轨道窗帘作为卧室与衣帽间的分割线,拉开,自成一体空间更通透,关上,就是专属于两人的秘密空间。
为了保持家的风格一致,主卧的背景墙配色延续了客厅的浅灰色和绿色,并用石膏线连接。

按照小夫妻的喜好,安排上了躺平就可以看的投影仪,1.8宽的超大幕布下拉妥妥的家庭影院。
著名设计师Eileen Gray 的经典之作E1027的边角柜可做一些基础的收纳,放在空间里也可提升质感。

衣帽间里面是三面环墙的通顶定制柜,可满足夫妻二人的衣物、皮箱收纳,中间放置的白色柜体可放置手表、内衣等,小户型的大豪宅配置。
穿完的脏衣服可顺手扔进衣帽间角落的洗衣机和烘干机里,很方便,(但没有照片,可以看平面图)因为隔壁就是卫生间,排水只需要打个洞。

06
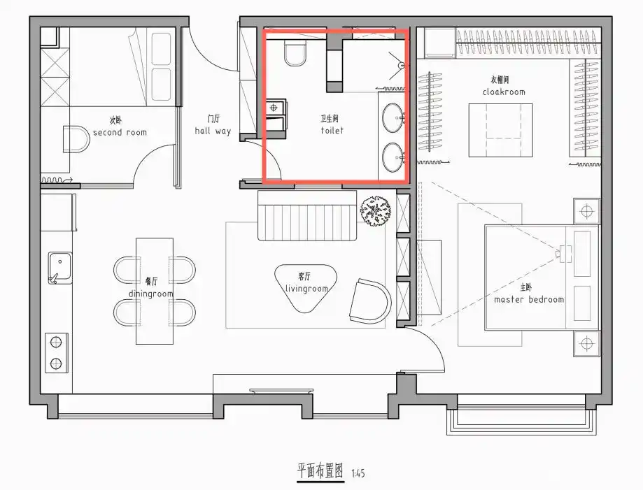
卫生间

终于来到了卫生间,原有的卫生间因为是全封闭的,昏暗逼仄,采光是大问题。
因为是出租屋设计也很随意。
这是改造前的卫生间



改造后的卫生间借了一部分客厅的面积,将墙体外移并改变了门的朝向,新增的墙体上掏了个大洞来借光,(前面说过了,不赘述)。

原有的卫生间改造后变成了洗浴区、淋浴区、马桶间三分离。
双台盆的设计,可满足夫妻二人同时使用,不必错开早高峰,台盆下定制了超大的存储空间,搭配编织篮可满足不同种类,瓶瓶罐罐的收纳。


淋浴房和马桶间分别用绿色和红色的外墙防水涂料上色,并且整面墙都在使用。
这似乎与以往的素色卫生间案例大相径庭,但
设计师希望通过红、绿这两个互补色造就心理的暗示,让人在这个空间里是有趣且享受的。
这也体现在另外一个细节上,在淋浴房的凹槽处,设计师置入了隐藏的音响,边洗澡边享受满足屋主的小资生活。

卫生间的壁挂式马桶让整个空间更轻便,也更省空间。

好了,今天的设计师案例就介绍到这里啦,有疑问评论区见,别忘记“点赞+关注”哦!
猜你喜欢
攀高逐新续华章 五华区推动高质量发展再上新台阶
145
多所高校铺开大学生学业评价改革 创新的火花比完美的学分更重要
213
【三分钟速览新闻联播】2016.09.26
243
吉林省老年人迎来一大波儿福利!各种免费、补贴…
231
嘉祥教育品牌介绍
133
宿州学院成人高考报名条件
259
实施“双促”“双推”工程,打造社会服务品牌
125
全国人大常委会通过废止有关收容教育法律规定和制度的决定
96
2天桐柏培训课程桐柏精神红色教育基地方案(A)
166
关于深化现代职业教育体系建设改革的意见.docx
231
装修公司为抢搬运生意20人追打十几名散工
新房坚持不做吊顶,全屋家具进场效果还不错,先放着通风一段时间
今年装修的请注意!江苏多地旧房装修补贴申领指南来了
5月嘉兴吊顶展,法帅携“美菱”共同探讨吊顶新未来
腻子粉怎么批发便宜,长沙腻子粉批发【最新资讯】
“三增两降”:无锡再颁十条楼市新政
2025深圳装修报价指南:价格区间与省钱攻略
单面布基胶带的用途是什么
艺术漆涂刷的详细步骤
装修中集成墙板的效果怎样?



