一居室混搭风,独居人士的首选风格,处处都有小惊喜
2025-09-19 本站作者 【 字体:大 中 小 】
一居室混搭风,独居人士的首选风格,处处都有小惊喜
作为喜欢独居的业主来说,这套房子不论是从使用面积还是地理位置上都非常的适合,但是内部空间缺少足够的个性,作为对生活品质要求极高的精英人士,业主更希望自己的家足够的简洁明了,还有充满时尚的元素,不要过于的死板和单调。

房屋户型:一室
房屋面积:50平方米
装修预算:20万
设计师:李文伟
主要建材:大理石材、烤漆玻璃、天然木皮、进口耐磨地板、特殊磁漆

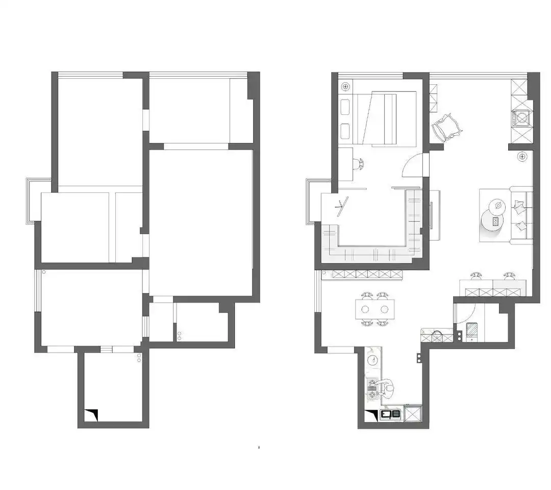
【户型图】

因为是二手房所以内部的很多装修都很老旧,无法满足业主的使用需求,考虑到日常只有业主一人居住,所以改造的重点就是围绕着业主的喜好和起居习惯,打造一个单身人士需要的超强功能大套间。

【玄关】


设计重点:丰富元素让空间更加全能
改造之后的玄关兼具的功能更加的强大,不仅增设了足够的储物区,还和餐厅厨房保持了紧密的联系,餐边柜也摆放在这里,让空间里的收纳区更加充足和完善。


整个空间都是选用的乳白色作为主色,点缀着干练的黑色,让空间更具质感和力量感。虽然是业主一个人居住,但是对空间格调的要求丝毫不能降低,反而更要足够的完美和独特。

精致的餐具同样重要,不仅是空间的装饰品,也是生活的调剂品。
【客厅】


设计重点:无阻碍空间更显开阔视野
进门看向室内,可以看到独立的办公区和其他的生活区,不仅足够的开阔和敞亮,更能感受到浓浓的家庭气息,到处都是轻松的氛围。


在家业主也会办公或者学习,所以超大的书桌对业主来说就是必需品,简约的加长书桌可以满足两个人同时办公的需求,又能营造出一种轻松愉悦的办公气氛。


简约风的沙发和茶几足够业主的使用需求,可以按照自己的心情随意变幻位置,让空间每天都能充满新鲜的活力。

爱生活的人总是会发现点滴的美好,即使只是简单地一顿饭,一场电影,或者是和阳光的一次拥抱。
【厨房】


设计重点:白色基调打造明亮厨房
厨房原来的采光非常差,不仅给人以压抑昏暗的感觉,烹饪的时候也非常的不方便。改造之后首先更换了整个厨房的底色,延续了客厅的暖白色,让厨房在视觉上更加的明亮,再搭配可以折射阳光的亮面瓷砖,整个厨房完全变身成为一个清爽的明厨。
【卫生间】


设计重点:
【卧室】


设计重点:流畅动线减少起居烦恼
卧室的布局按照业主的日常习惯安排,采光最好的位置留给睡眠区,衣帽间和休息区用玻璃拉门做隔断,既保证了空间的独立,又不会影响到衣帽区和其他空间的采光通风。


床头两侧都安排同系列的小书桌既能满足实用需求,又能填补卧室的留白空间。
【衣帽间】

设计重点:多规格开放式设计便于日常拿取衣物
衣帽间的空间非常宽敞,整个衣帽间的衣柜都是开放式空间,既方便拿取衣物,也减少日常打理家务的麻烦。
【阳台】


设计重点:灵动的美更有吸引力
客厅基本都留给业主自己的支配,平时可以坐在窗边看看书,或者欣赏下风景,享受完全无压力的私人时光。

当然必备的生活区也不能少,阳台另一侧是顶天立地的大柜子,不仅有独立的洗衣区,还有各种清洁工具,既减少了做家务的动线,又能避免空间的不美观。关上门完全看不到,也避免灰尘的入侵。

即使是一个人生活也要同样精彩,对生活时刻充满热爱和追求,感受来自生活的点滴欢乐。在家中可以真正的实现自我的放松和愉悦,让家的意义更加深厚。
【图片若有侵权,麻烦私信删稿】
猜你喜欢
巴中消防组织开展党史学习教育第一课暨红色教育基地挂牌仪式
232
开展语文教研活动总结
190
关于在线教学,深圳市教育局发了新通知
156
徐州鼓楼法院念好“三字经” 推动党史学习教育走深走实
225
关于开展2021、2022年度校级教育教学改革研究项目鉴定结项工作的通知
160
区委教育工作领导小组2024年第一次全体会议召开
100
社区教育工作汇报
185
名单确定!这些大学,冲击“双一流”
203
师德失范整治心得体会
88
落实弟子规,传承爱的教育,世界才能和平
234
装修公司为抢搬运生意20人追打十几名散工
新房坚持不做吊顶,全屋家具进场效果还不错,先放着通风一段时间
今年装修的请注意!江苏多地旧房装修补贴申领指南来了
5月嘉兴吊顶展,法帅携“美菱”共同探讨吊顶新未来
腻子粉怎么批发便宜,长沙腻子粉批发【最新资讯】
“三增两降”:无锡再颁十条楼市新政
2025深圳装修报价指南:价格区间与省钱攻略
单面布基胶带的用途是什么
艺术漆涂刷的详细步骤
装修中集成墙板的效果怎样?



