「工艺·前沿」橱柜设计4大秘诀,德系精工柏丽首次公开细节
2025-09-12 本站作者 【 字体:大 中 小 】


橱柜在厨房空间中有着相当重要的地位。我们常用的餐具、杯子、调味品等都需要一个存储空间,橱柜就是这样一个理想的储存空间。

德国人的严谨众所周知,橱柜的柜体工艺、配件细节、整柜安装是检验橱柜品质的重要环节。这些环节中有不少值得注意的问题,那么德国人是如何处理的呢?
今天我们就来了解一下代表着进口橱柜的佼佼者——德国柏丽nobilia精工橱柜。本文主要关注以下问题:
1. 橱柜的构造;
2. 设计要点及注意事项;
3. 安装流程及要点。
橱柜的构造

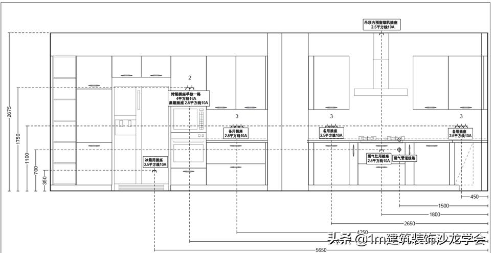
橱柜立面效果图
厨房橱柜一般包括地柜和吊柜这两种柜子的组合。地柜是与地面接触的柜体,吊柜则通常安装在墙上,这样能够充分有效的利用厨房空间。下面我们就来看看橱柜的具体构成吧。
柜体

橱柜的主体部分,由以下部分组成:
1)柜门:作用是打开或封闭柜体,在我们的视线中占据主要部分;
2)侧板:柜体两侧封闭柜体的板材;
3)背板:柜体背面的板材,通常不在我们的视线范围内;
4)横梁:作用是为层板提供支撑;
5)层板:分割柜体内部空间,使柜体内部空间分布更加合理;
6)底板:柜体底部的板材;
7)台面:地柜的顶面,根据不同的设计风格,可以选择石材或金属等材质作为台面。

配件

除了橱柜主体,配件也是构成橱柜的重要部分,橱柜的配件主要有:
1)把手:除了开关柜门,也起到装饰作用;
2)五金件:主要有开关柜门用的铰链,也包括柜体安装的其他五金件;
3)柜脚:主要作用是支撑柜体;
4)柜体前封边:用于柜体外转角的收边包边;
5)踢脚板:柜体底板与地面之间空隙的收口板。

橱柜的构造并不复杂,不过要想好看、实用,有些设计要点我们还是需要注意的。下面我们就来看看德国柏丽nobilia设计的秘诀吧!
设计要点及注意事项


德国柏丽橱柜的设计要点主要有以下4个方面:
现场尺寸的测量

必须是在贴完砖,做完顶地面的厨房完成面测量。我们需要根据正确的尺寸和现场情况来调整厨房的方案,正确的现场测量是整个橱柜方案的基础,因为在现场不仅是厨房尺寸的测量,还可以得到很多设计时需要知道的信息。具体测量细节包括:

现场尺寸测量示例
1)厨房现场尺寸:测量时要根据墙体是否粉刷和装修面材种类(瓷砖或大理石),来预估完成面尺寸。粉刷的一般扣2CM,没有粉刷的扣4CM,如果贴其它材料另外计算;
2)管井尺寸:如水管井或烟道井未施工,需要与装修公司沟通确认尺寸;
3)管道布置:记录上下水的位置,煤气管道的位置,排烟道的位置,看是否合理。如果不合理是否可以优化;
4)墙体吊顶构造:墙体材料,是否能够承重,现场吊顶高度,有没有梁或者预埋设备,空调设备排风管道等;
5)窗台高度窗户开启方式:注意窗台高度是否低于台面后挡水,内开窗是否会碰厨房水龙头,有没有突出窗台板;
6)门套厚度门扇开启方式:注意门套厚度不要影响抽屉或者电器开门,确认移门或者开门。

由于每个厨房都是不一样的,因此在现场尺寸测量过程中,沟通是非常重要的,沟通过程中要注意以下几点:
1)厨房装饰墙面有没有特殊材料(如玻璃,不锈钢等);
2)电器配置(国产的需要了解详细尺寸),电器的功率,嵌入式电器型号;
3)地暖分水器、热水器、煤气表的位置等;
4)有没有柜内灯,有没有配粉碎机、净水器等;
5)有腰线的墙面贴砖和台面后挡水的关系,地面贴砖和踢脚线的关系等。

橱柜设计规范


1)安装图纸应具备完整性
安装图纸应该是一套完整的厨房图纸,包括厨房的所有元素,如柜体、台面、水盆龙头、厨房电器等;
2)图纸标注尺寸应该与现场吻合
安装图纸中的尺寸是贴砖完成后的净尺寸,该尺寸应与现场测量尺寸吻合,包括吊顶高度。房屋中的墙体、管井等构造尺寸应与现场吻合,且在图纸中能正常显示(各个立面)。燃气主管、燃气表位置及地暖分水器等设备需在图纸中有位置示意;
3)安装图纸应保持图纸的整洁性、易读性
安装图纸中水平方向及垂直方向尺寸应完整,且易于读取,不要有过多零碎尺寸。与安装无关的带尺寸挂件及装饰物等东西可删减;

示例
4)各种柜体内的配件应在立面图中标出
各种柜体内的配件,如刀叉盒、防滑垫、防潮铝板、垃圾桶等,应在相应柜体上进行标注,以便安装时正确放置;
5)灯具及挂件等安装位置应在图纸中注明
灯具及挂件等在图纸中显示位置不精确,应单独注明安装位置或安装定位的的原则;

示例
6)柜体内的隐藏电器应注明,如内置冰箱、净水处理器等;
7)外露电器应注明电器名称,如烤箱、蒸箱、消毒柜等;
8)客户自购电器、水盆等需注明尺寸等要求,尤其是吊柜包烟机处理方式,需对烟机护罩的深度做出要求;
9)对厨房各部位的台面材质进行标注(人造石或原装台面)。
水电预留规范


1)水电点位数量满足需要
综合考虑固定电器、备用电器、照明灯具数量来预留电位,综合考虑用水及排水设备需求预留上下水点位(有些可共用);
2)水电点位功能满足需求
电位预留需考虑电器功率,根据设备要求预留10A、16A或32A电源,非10A电源必须文字说明,隐性用水及排水设备要考虑周全(带制冰冰箱、无水箱蒸箱等);
3)水电点位位置满足需求
电位预留需考虑电器电源线长短,不得影响电器本身安装。上下水点位预留也需考虑龙头软管长度及设备上下水管的长度;

示例
4)水电点位预留力求位置准确
水电点位预留需尽量以已有的结构墙为基准进行标注,充分考虑收口板大小的调节性带来的误差影响,考虑地面铺砖及踢脚高度调整带来的误差影响;
5)水电点位预留考虑现场可实施性
电源点位需要考虑电器的电源线长度(嵌入式冰箱、烤箱等),上水点位考虑电器的管道长度(洗碗机、洗衣机等),下水点位需考虑排水长度、坡度等,最好接近现有的下水点且通过处不能有电器设备;
6)水电点位预留要考虑后期安装及检修便利性
水电点位预留尽量避免穿越橱柜,减少后期橱柜的开孔及裁切。水电点位不要留在太隐蔽的地方,最好视线所及、触手所及,岛台下留地插需慎重,避免使用及开孔不便。

水电预留规范示意图
设计注意事项


1)吊柜包烟机设计及订购指南
在处理吊柜包烟机设计时,需考虑烟机装饰罩进深。可以订购封和两个柜体板将烟罩封住。其次考虑烟罩靠墙,烟机两侧柜体内需单独留电源点位及变压器。

吊柜包烟机
2)安装细节处理

注意:橱柜贴墙安装时,如果墙体有门套线,橱柜靠墙需订收口板,否则会造成柜门无法打开或无法开启90度,若是五金柜或嵌入式电器,将影响功能使用;

注意:功能地柜(抽屉、拉篮)、转角功能柜(转盘)后方不能放分集水器、燃气表、净水器等设备;

注意:订购上翻门吊柜时,需注意不能贴吊顶安装,且吊柜上口距吊顶高度不能小于180mm,否则影响开门;

注意:订购折叠上翻门吊柜时,注意不能贴吊顶安装,且吊柜上口距吊顶高度不能小于195mm,否则影响开门;

注意:如果设计方案时,涉及到柜体横跨墙柱两侧时,请设计师提醒业主及装修单位,墙柱两侧墙面需保持水平;

错误示范
注意:上翻门或折叠上翻门吊柜如果贴墙安装(旁边没有收口板),在门板开启轨迹不能有开关面板或弱电设备等物品阻碍门板开启;

错误示范
注意:吊柜贴顶安装时,顶部的空调通风口、灯具等会影响柜门的开启,设计方案时应避免;如果有吊柜灯,变压器无处可放,只能在吊顶开孔,放在吊顶内;

注意:设计师设计装饰线时需注意吊顶造型、高度及进深;



错误示范
注意:上装饰线进深突出柜体、上装饰线及灯饰线突出柜体、上装饰线拼接在一起时,注意与墙、柱关系。
安装流程及要点

以上是德国柏丽橱柜设计过程中的一些规范和注意事项,接下来我们再来看看他们的橱柜安装流程及要注意的地方。
安装流程:
1)货物运输到后,安装人员把货物搬运到安装准备区;
2)安装准备区应和业主或者装修公司协商好,在方便安装的前提下把安装对其他事物造成的影响降到最低;
3)避免装修公司的施工作业、业主的生活、其他居民的出行等因素影响安装现场;

4)安装开始前安装人员查看确认单,理清场地,并把柜子的抽屉、门板、拉篮及层板等整齐码放在固定的区域,保护并提高安装效率;

5)安装柜体时应该从“里”向外安装,切记不能从“外”向里安装;
备注:“里”指的是没有收口板的柜子,没有收口板意味着无法调节距离,那么它的位置就是固定的,所以必须先安装。“外”指的是有收口板的柜子,有收口板意味着可以在一定范围内调节距离,所以可以根据实际尺寸灵活安装。

错误的安装顺序

正确的安装顺序
6)灶具柜两侧没有收口板,并且应与烟机居中,所以可以根据烟道确定安装位置。灶具柜安装好后,根据灶具柜的位置,便可在其两侧安装其他柜子;

7)根据电器的尺寸留出相应空间,并在上方加根横梁,避免安装过程中发生位移;

8)根据现场实际情况收口;

9)底柜全部安装完成后利用柜脚调整水平,柜子后面的柜脚如果手够不着,可以用螺丝刀在柜体内部调节;

10)烟机和灶具居中,确定好烟机位后,烟机两边的吊柜分别向两侧逐个安装,最后用收口板收口;

11)根据烟机位置确定好吊柜位置后,安装吊码杆,吊码杆注意水平安装,打孔时注意是否会碰到墙内的管线;

12)吊码杆安装好后,把吊柜挂掉吊码杆上,调节吊码,使柜子侧板靠墙并保持水平;

13)根据烟机一侧吊柜位置确定另一侧吊柜位置。若燃气管道影响吊柜正常安装,则根据燃气管实际尺寸对吊柜进行裁切,保证吊柜正常安装;

14)主体安装完成后,按顺序依次安装层板、门板、抽屉,安装完成后,清理现场并对整套柜子做成品保护。
小结

厨房不仅是烹饪场所,也是情感交流和社交的空间,在日常生活中扮演着很重要的角色。德国柏丽nobilia将科技应用于设计软件的开发和生产线的不断完善,将德国工艺的传承和创新诠释得淋漓尽致。好了,今天的分享就到这里了,希望能给小伙伴带去帮助!
最后还是用一张思维导图总结一下知识点:

猜你喜欢
大学毕业生到乡、退休教师回乡!有这些奖励和优惠政策!
208
幼儿园中班安全教案《认识火》含反思
106
新文科视域下全国高校日语教育暨日本研究学术研讨会在浙江越秀外国语学院举行
182
如何开展民族团结教育活动
176
成都市双流区丹秋美亚学校2023年教师招聘启事
171
我市精准赋能不断提升干部教育培训质效
135
长江钢琴艺术家中心(上海)丨2023年5月活动预告
250
四川大学生思想政治教育研究中心2025年度课题申报通知(3.31截止)
154
安徽教育将有大动作:严打“众筹私教”、推进中职与普高课程互选
148
我院召开学习贯彻《教育强国建设规划纲要(2024-2035年)》、2025年全国教育工作会议和全省教育大会精神专题研讨会
155
装修公司为抢搬运生意20人追打十几名散工
新房坚持不做吊顶,全屋家具进场效果还不错,先放着通风一段时间
今年装修的请注意!江苏多地旧房装修补贴申领指南来了
5月嘉兴吊顶展,法帅携“美菱”共同探讨吊顶新未来
腻子粉怎么批发便宜,长沙腻子粉批发【最新资讯】
“三增两降”:无锡再颁十条楼市新政
2025深圳装修报价指南:价格区间与省钱攻略
单面布基胶带的用途是什么
艺术漆涂刷的详细步骤
装修中集成墙板的效果怎样?



