20㎡loft公寓神改造,装修完业主感动到哭,这个设计师太厉害啦
2025-05-05 本站作者 【 字体:大 中 小 】
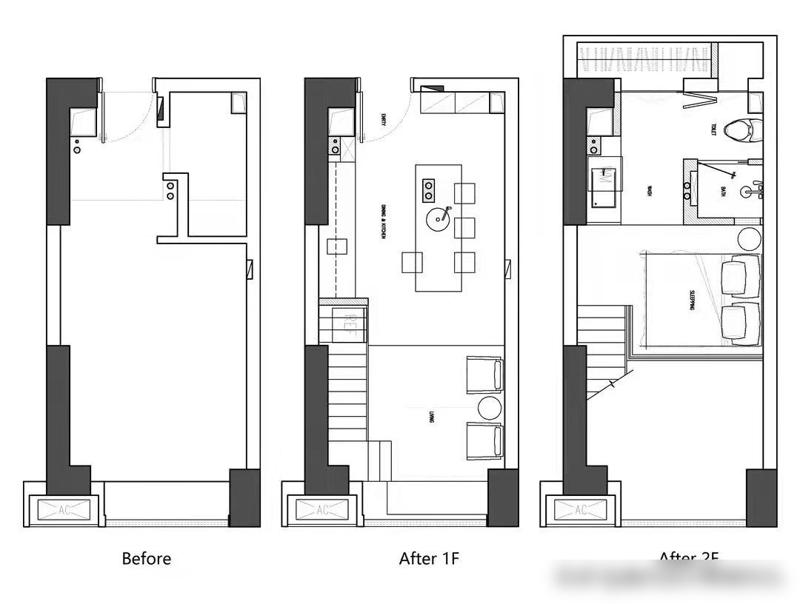
在武汉,有这样一对小两口,他们的生活总是充满惊喜与创造力。尽管他们的家只有20㎡,一个标准的LOFT公寓,但他们却能够将这个看似狭小的空间变成一个多功能的生活空间。
这20㎡的公寓,虽小却不失宽敞。南北通透的格局使得阳光洒满每一个角落, 透亮的采光让空间显得更加开阔,空气流通顺畅,让人感受到一种轻松愉悦的居住体验。

在这样的空间里,他们不仅能享受到宽敞明亮的生活环境,更能体验到一种与自然亲密接触的生活方式。房子虽小,但他们却能够在这个有限的空间里, 实现更多的可能性,享受生活的每一刻,这也让我们见识到了现代小空间的智慧。

一、餐厨一体的布局设计,开放式厨房更适合年轻人
这对小夫妻选择了 开放式的厨房与餐厅设计,这样不仅节省了空间,还能让家中的每一个角落都充满活力与温馨。
开放式的设计使得厨房与餐厅之间的界限变得模糊, 让人们在烹饪的同时,也能享受到与家人朋友一起用餐、交流的乐趣。这样的布局不仅提升了空间感,也让整个家居环境更加通透。

厨房区域虽然较小,但依然能满足这对小夫妻的日常需求。在这里, 他们可以使用各种方便的厨房电器来烹饪美味的菜肴,同时, 开放式的餐厅区域也提供了一个舒适的就餐环境,让人们可以享受美好的用餐时光。

二、20㎡公寓如何告别压抑呢?增加空间的扩展感是关键
重点①:巧用装饰软装,增加空间的视觉扩展感
这对小夫妻巧妙地利用装饰来增加空间的视觉扩展感。
在家中,他们选择了 色彩明亮、图案简洁的软装,如沙发、抱枕、地毯等,这些软装不仅提升了空间的舒适度,也让整个家居环境更加轻松愉悦。

同时,他们还利用墙面镜子等装饰来反射光线, 增加空间的立体感,这种设计不仅让空间看起来更加宽敞明亮,也增加了整个家居环境的时尚感。
三、收纳与实用并存,空间利用率几乎达到100%
①楼梯底部的储物柜,避免空间的浪费
这对小夫妻在家中设计了一个储物柜,这个储物柜主要用于存放一些不常用的物品,比如书籍、文件、杂物等等,这样一来, 房间就有了更多的空间来放置家具、装饰品等物品,同时也让整个家居环境更加整洁有序。

不仅如此,他们还考虑到了空间的实用性和舒适度,选择了 一些实用的收纳家具和装饰品来提升空间的美观和实用性。比如, 可以在角落放置一个小型书架,将书籍分类整理,既实用又美观。
②二层卧室的布局,强调空间的休闲感

卧室是家中最私密的空间,所以在设计时需要考虑到居住者的个人需求和生活习惯, 通过选择合适的布局和家具,可以让卧室既舒适又实用。例如, 可以选择一张宽大的床,搭配柔软的床垫和靠枕,同时可以考虑加入一些柔和的灯光和装饰品,让整个空间更加温馨舒适。
③客厅与卧室的通透设计,强调空间的联动感

这个小家最大的特点就是它的开放式空间设计,没有过多的隔断,让整个家居环境更加通透,有呼吸感,小夫妻们可以在这里尽情地享受生活,感受空间带来的舒适与愉悦。
这样的设计不仅提高了空间的利用率,也让整个家居环境更加有活力和生气。 客厅和厨房的区块感也较弱,彼此之间不会产生阻隔感,使用起来更加方便,也适合一些比较懒人。

四、小空间也要有颜值,看看这些设计师花了心思的细节
一、卫生间的干湿分离,避免潮湿感
卫生间是我们日常生活中不可或缺的空间,但在小户型中,卫生间往往设计得比较小,因此在设计时更需要注意一些细节。
这种小户型的卫生间面积较小,但通过合理的设计, 依然能够满足日常生活的需求。为了避免水汽在卫生间内停留过久 ,装修时选择干湿分离设计就能避免这个问题,通过雪花玻璃的使用, 还能避免空间产生压抑感,带来了更好的通透性和隐秘性。

二、雪花玻璃的使用,提升空间的亮度和美观性
这对小夫妻非常注重细节和品质,他们所选择的雪花玻璃不仅具有防水、防潮、防霉的特性,而且 能够有效地提升空间的亮度和美观性, 雪花玻璃的独特纹理和颜色变化,让整个空间更加生动有趣,避免了单调乏味的感觉。

在这个家中,设计师注重品质与细节,每一个空间的设计都经过精心打磨,力求完美。 他们所选择的材料不仅经久耐用,而且环保健康,让人们可以放心地享受生活。
比如厨房和卫生间,都会使用耐脏耐放的材质,而不会使用一些过度追求设计感的薄型材料。

在小空间中,我们也可以尝试一些新颖的设计,比如在墙面上增加一些可调节的收纳架, 根据季节变化,调整收纳物品的种类和位置,这样可以让空间更加灵活和实用。
同时,我们也可以尝试在空间的 垂直性上做文章,比如设计一些悬挂花园,种植一些绿色植物,既美化了空间,又提升了生活品质。

在这个20㎡的公寓里,这对小夫妻不仅实现了功能上的全面覆盖,还注重了空间的美观和舒适度。通过设计和改造,他们将这个小小的空间变成了一个充满活力和温馨的家,让人感到舒适和愉悦。这样的设计不仅适合年轻人,也适合任何想要体验新生活的人。
猜你喜欢
“红途·宝山行”爱国主义教育基地大思政课送进爱心寒托班 在孩子心中种下爱国的种子
136
幼儿园五大领域是指什么啊?
99
校团委、学生处组织学生参观红色教育基地
129
武汉理工大学继续教育学院简介
150
杭州中小学最新放假通知!
149
生命教育理论谁提出的
170
巴中消防组织开展党史学习教育第一课暨红色教育基地挂牌仪式
232
信息来源:深圳市卫生健康能力建设和继续教育中心
181
重大土木,全国先进集体!
225
小学二年级心理健康教学计划
208
装修公司为抢搬运生意20人追打十几名散工
新房坚持不做吊顶,全屋家具进场效果还不错,先放着通风一段时间
今年装修的请注意!江苏多地旧房装修补贴申领指南来了
5月嘉兴吊顶展,法帅携“美菱”共同探讨吊顶新未来
腻子粉怎么批发便宜,长沙腻子粉批发【最新资讯】
“三增两降”:无锡再颁十条楼市新政
2025深圳装修报价指南:价格区间与省钱攻略
单面布基胶带的用途是什么
艺术漆涂刷的详细步骤
装修中集成墙板的效果怎样?



